MURAILLE, ESPACE CRYPTIQUE
Posé sur les remparts ceinturant la Vieille-Ville, l’immeuble d’angle de la rue Beauregard impose un classicisme superbe dans un emplacement particulièrement privilégié. Conçu dans le dernier quart du 18e siècle pour le conseiller Isaac Louis Thellusson, il apparaît aujourd’hui encore comme un chef-d’œuvre grâce à l’harmonie de sa composition ou à la finesse de ces ornements.
Bâti sur les remblais instables des fortifications, l’édifice est porté par deux niveaux de sous-sol trouvant appui sur une couche souterraine dure et solide. Depuis leur origine, ces étages complètement enterrés ont servis de caves, sans que leur généreuse surface et leur impressionnant volume n’éveille d’autre intérêt que celui du dépôt et du rangement.


Piscine ou galerie d'art
Sous leur air de catacombes, ces espaces aux murs bruts, au sol de terre battue et aux plafonds voûtés parfois hauts de plus de quatre mètres dissimulent un potentiel intéressant que vient confirmer l’excellent état physique du bâti, résultat d’un ingénieux système de ventilation faisant circuler l’air frais extérieur jusque dans les moindres recoins. Une analyse fine de la situation confirme qu’en dépit de contraintes sévères (accessibilité, lumière, aération), les deux sous-sols peuvent être rationnalisés et trouver une affectation moins utilitaire. Peaufiné jusqu'aux détails d'exécution, le premier projet imagine une piscine intérieure. Bien que très abouti et mené jusqu’à l’obtention de l’autorisation officielle, ce programme n’est toutefois pas retenu par le maître de l’ouvrage qui, finalement, ambitionne plutôt une activité ouverte au public. Le choix d’une galerie dévolue à l’art contemporain s’installe alors comme une évidence.
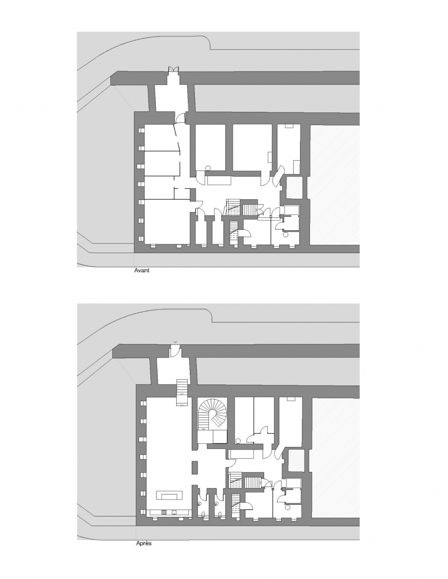
Une ouverture de plein-pied
Afin de libérer une surface maximale, les caves des appartements sont désormais regroupées dans la moitié du premier sous-sol. C’est à ce niveau que se situe l’entrée de la galerie qui, grâce à la porte existante donnant sur la place des Casemates, s’ouvre de plain-pied sur le domaine public. Un sas aménagé en vestiaire conduit ensuite à un généreux espace d’exposition dont la longueur se voit amortie par l’installation, au fond, d’un bloc-cuisine discret et compact. La travée adjacente comprend les WC et de nouvelles circulations verticales (escalier hélicoïdal, ascenseur) pour accéder au deuxième sous-sol. Celui-ci se voit entièrement réservé à l'exposition de travaux artistiques, hormis une pièce pour le stockage et un local technique.





Au service des œuvres
L’aménagement intérieur vise avant tout à mettre en valeur les œuvres présentées. Pour qu’aucune plinthe, canal ou câble n’encombre les espaces, il a fallu conjuguer l’ensemble des équipements avec les innombrables besoins de la galerie. À la fois modulaire et invisible, la gestion de l’éclairage, de l’acoustique, de la ventilation ou de l’hygrométrie répond ainsi à un maximum d'éventualités : public dense ou fréquentation restreinte, œuvres minuscules ou imposantes, supports fragiles ou résistants, accrochages classiques, installations audacieuses, projections, etc. Planifié en amont puis maîtrisé en phase d’exécution, ce travail pointu de coordination technique génère des volumes à l’élégance discrète, où la restauration pure s’allie aux options contemporaines. Les murs ont été blanchis à la chaux, leurs encadrements de pierres appareillées laissés bruts ; les portes en bois ont été restaurées avec leurs ferrements anciens, puis replacées selon les besoins ; la cuisine et le vestiaire se parent de MDF noir, le nouvel escalier est réalisé en métal blanc. Au sol, un béton ciré relie avec fluidité et cohérence les différentes pièces.
Un nouveau lieu de vie
La beauté cryptique des caves s’est muée en un véritable lieu de vie inattendu et convivial, conforme à toutes les dispositions légales ou administratives. La galerie assume son identité singulière et fait désormais sienne la substance majestueuse et solennelle d’un espace conçu il y a près de deux siècles et demi.



