PREMIER ÉTAGE, PREMIÈRE CLASSE
À l’abri des regards et des nuisances, l’immeuble niché dans une arrière-cour typique du 18e siècle a subi au fil des générations d’importants changements. Plus ou moins explicables, réversibles ou destructeurs, ces derniers ont néanmoins permis à la bâtisse de traverser le temps sans perdre son âme.
Dans un tel contexte, la transformation d’un appartement passe par une compréhension fine de l’histoire du lieu.



Si les sondages soulignent nombre d’éléments incongrus (poutrelles métalliques dissimulées dans les cloisons, fausse voûte en vraie pierre de taille, poutres collées aux plafonds), la recherche en archives permet de reconstituer la chronologie des différentes interventions. Un travail essentiel qui révèle le fonctionnement spatial d’origine auquel les principales options du projet vont désormais se référer.
Une trame médiévale
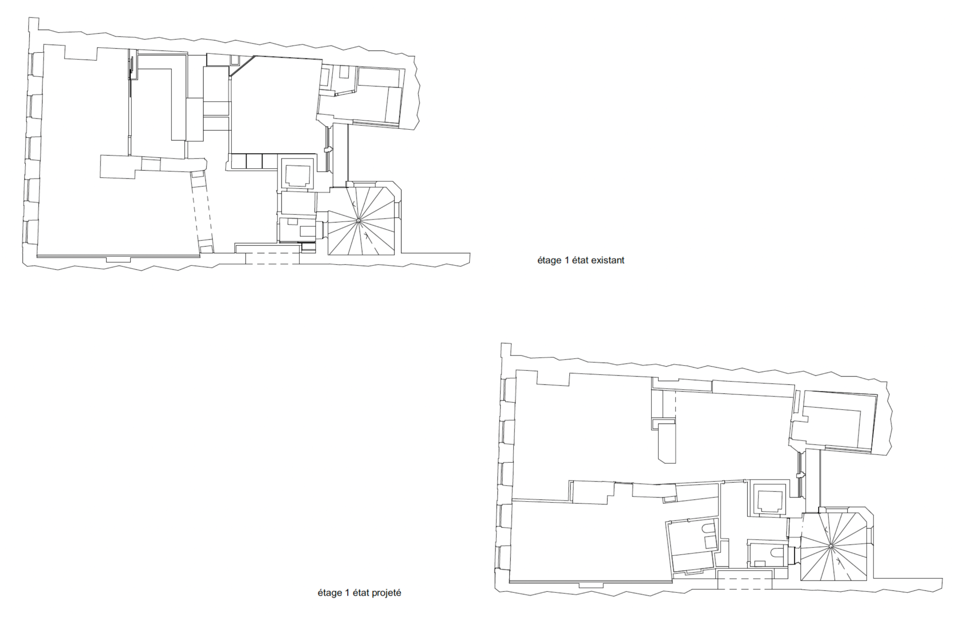
Sans chercher à restituer ce qui n’existe plus, la nouvelle distribution entend réhabiliter la trame médiévale claire et transversale de cet espace de 95m2 situé au premier étage. Assaini de ses grossiers éléments parasites, l’appartement retrouve ses caractéristiques historiques tout en adoptant les codes du confort moderne. La cheminée ancienne est conservée, la chambre s’ouvre à nouveau sur la jolie cour intérieure, les pièces à vivre gagnent en lumière naturelle et les locaux secondaires se regroupent au centre du volume. Cette démarche qui guide la nouvelle organisation spatiale se poursuit dans le choix des finitions. Le langage sobre et contemporain des nouvelles menuiseries intérieures s’inspire des boiseries anciennes restaurées dans le séjour, celui des plafonds est légitimé par l’absence de traces d’un quelconque ornement mouluré. Au pompeux parquet à panneaux qui épousait tant bien que mal le contour des murs, on a préféré la pose de lames de frêne à peine soulignées par une bordure en noyer.
Un intérieur à l'atmosphère sereine
Peaufinée par la présence caractéristique du gris genevois aux murs, l’atmosphère sereine de cet intérieur dissimule un travail technique considérable sans toutefois céder aux dernières modes de la domotique. Le réseau de câblage électrique a été modernisé, les plafonds répondent aux normes anti feu les plus récentes et une série de canalisations s’est vue déviée pour mener à bien l’opération. À l’extérieur, les interventions se sont limitées à l’amélioration thermique des fenêtres avec pose de verres isolants sur cadres en bois maintenus et à la reconstitution du palier dont le niveau d’origine avait été modifié.
Le recours au geste juste
Le projet s’appuie donc sur des bases solides nées de la recherche en archives et de sondages réalisés in situ. Une prospection indispensable et minutieuse qui permet de comprendre l’ADN du lieu, favorise le recours au geste juste et contribue pleinement à la valorisation des espaces. Portée par ce travail effectué en amont, la phase d’exécution esquive les écueils fréquemment rencontrés dans le cadre d’interventions sur ce type d’objets anciens. L’appartement retrouve son cachet grâce à des choix clairs et fondés, une mise en œuvre adaptée à la substance existante et aux futurs besoins des usagers.


